VFO Simplifies Circuits, Improves Reliability
Hydraulic system layouts commonly used in mobile equipment are either based on open-center valve technology coupled with fixed displacement pumps or load-sensing technology normally coupled with a variable-displacement pump, although sometimes a fixed-displacement pump is used.
Both solutions have different merits. For example, the open-center system is simple, robust, cost-effective, and provides a good operator feel (smooth operation and load-dependent flow are helpful, especially in digging operations). On the other hand, load-sensing technology provides better energy efficiency—especially when coupled with variable pumps—and multifunctional control.
What Is VFO?
Variable Flow Open-center is an innovative concept where a variable-displacement pump is controlled by an open-center type valve. Therefore, VFO combines several advantages of the existing technologies: the simplicity, cost-effectiveness, and smooth operation of the open-center valve, together with the energy efficiency of piston pumps.
VFO technology can be applied to any valve control type: manual, hydraulic pilot, or electrohydraulic. Furthermore, it can easily be combined with any load-sensing (post- or pre-compensated) valves, as well as CPU (constant pressure unloaded) valves (Fig. 1).
1. Construction equipment, such as this loader backhoe, can benefit from the controllability and efficiency of Variable Flow Open-Center hydraulic system design.
In a nutshell, VFO provides
- Simplification—no compensators and shuttle networks
- Reliability—less complexity means more dependability
- Productivity—energy balance of variable-pump technology
- Applicability—any valve control type, no need for electronics
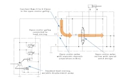
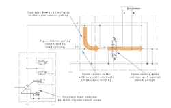
The VFO system uses a standard load-sense or remote-pressure-compensated piston pump and an open-center valve with appropriately designed spools. The orifice connecting the power core and the open-center core of the valve allows a small amount of oil to be circulated through the open-center line. Shifting the spool commands the pump control to an increasing signal pressure. In turn, this determines a higher pressure to the functions (Fig. 2).
2. Principle of operation of the Variable Flow Open-center concept.
When no function is commanded, very low flow occurs across the valve, and the system power draw is lower than with a fixed-pump system—comparable to a load-sense system using a variable-displacement pump. When a function is partially stroked, the pump matches the flow demand of the cylinder, which is combined with the small, open-center flow.
When one or more functions are fully stroked, the pump goes to full displacement, and no flow is lost in the open-center galley. The metering for this multifunction operation is handled by the spool design. Parker valve engineers designed spools that adapt their position to the oil flow and achieve a high level of compensation without the use of specific sectional compensators.
VFO in a Backhoe Loader
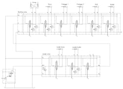
Figure 3 shows the schematic of a VFO used in backhoe loader. The lone piston pump (in this case, in a remote pressure-compensated configuration) is supplying two valve banks: one controlling the loader and the other the backhoe. The two valve banks control the same pump simply by connecting the two open-center galleys in series.
3. Application of VFO concept to a backhoe loader with two separate valve banks.
From an energy standpoint, the VFO circuit in a backhoe loader provides up to 20% less energy consumption (which turns into a 20% productivity increase) with respect to a standard open-center circuit using a single fixed-displacement pump. In terms of fuel consumption, for a 100-hp (75 kW) machine with an average use of 2,000 hr/yr at various duty cycles (digging, loading, craning, grading, driving, idling, etc.), about 4,500 l less fuel is used per year, which is equivalent to approximately €4,000 (or $3,000 in the U.S.).
In addition, the VFO circuit has the advantage of very stable and “load-feel” operation, due to the design of the open-center spools. These features are appreciated by operators, and they are very useful during operations that involve digging around gas or water pipes that cannot be damaged. On the other hand, load-sensing systems have similar energy balance as the VFO. However, they are characterized by a more “nervous” response because the flow is independent of load pressure. Thus, valves do not provide load feedback to the operator, making some critical operations (like digging around pipes) more difficult.
VFO in a Mini-Excavator
The schematic of Fig. 4 shows how the VFO concept can be applied to a mini-excavator. For simplicity’s sake, only the main functions of the arm have been included in the VFO valve bank. The valve controlling the excavating arm is quite similar to the previous backhoe valve. The important thing here is that the VFO concept is combined with a standard load sense valve for controlling the tracks. The flow-sharing valve is used to ensure straight tracking.
4. Application of VFO to a mini excavator, in this case, a combination of VFO and load sensing.
Value to Designers—VFO Addresses the Following Needs:
- “I am building a machine in two versions: one with open-center valve and fixed displacement pump and another with variable piston pump and LS valve. Is there a way to keep the valve and plumbing the same for both systems?”
- “I need to upgrade my system to piston pumps, but I am trying to keep the valve layout simple.”
- “The current system uses LS valves, and this is too costly. I am looking to reduce system complexity.”
Germano Franzoni, Ph.D., is senior systems engineer at Parker Hannifin Global Mobile Systems.
About the Author
Germano Franzoni
Senior Systems Engineer

Leaders relevant to this article:





