CHAPTER 4: ISO Symbols and Glossary, part 3
Absolute viscosity - the ratio of shear stress to shear rate. It is a fluid's internal resistance to flow. The common unit of absolute viscosity is the poise. Absolute viscosity divided by fluid density equals kinematic viscosity.
Absorption - The physical mechanism by which one substance attracts and takes up another substance (liquid, gas, or vapor) into its interior.
Accelerator - A substance that hastens the vulcanization of an elastomer, causing it to take place in a shorter time period or at a lower temperature.
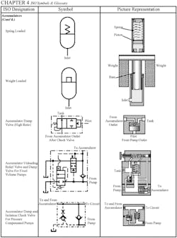
Accumulator -A container in which fluid is stored under pressure as a source of fluid power.
Accumulator, hydro-pneumatic bladder - A hydro-pneumatic accumulator in which the liquid and gas are separated by an elastic bag or bladder.
Actuator, pneumatic/hydraulic - A device in which power is transferred from one pressurized medium (pneumatic) to another (hydraulic) without intensification.
Additive - A chemical added to a fluid to impart new properties or to enhance those that already exist.
Adiabatic compression occurs when no heat is transferred to or from the air during compression.
Adsorption - The physical mechanism by which one substance attracts another substance (either solid, liquid, gas, or vapor) to its surface and through molecular forces causes the incident substance to adhere to that surface.
Aftercooler - A device that cools a gas after it has been compressed.
Aftercooling - The cooling of air after it has been compressed to lower its temperature and precipitate condensed vapors.
Afterfilter - A filter that follows the compressed air dryer, usually for the protection of downstream equipment from desiccant dust.
Air bleeder - A device for removal of air.
Air breather - A device permitting air movement between atmosphere and the component in which it is installed.
Air motor - A device that converts pneumatic fluid power into mechanical torque and motion. It usually provides rotary mechanical motion.
Air, compressed (pressure) - Air at any pressure greater than atmospheric pressure.
Air, dried - Air with moisture content lower than the maximum allowable for a given application.
Air, free - Air at ambient temperature, pressure, relative humidity, and density.
Air, saturated - Air at 100% relative humidity, with a dew point equal to temperature.
Air, standard - Air at a temperature of 68.8°F, a pressure of 14.70 pounds per square inch absolute, and a relative humidity of 36% (0.0750 pounds per cubic foot). In gas industries the temperature of "standard air" is usually given as 60.8°F. producing tiny bubbles that expand explosively at the pump outlet, causing metal erosion and eventual pump destruction.
Air - A gas mixture consisting of nitrogen, oxygen, argon, carbon dioxide, hydrogen, small quantities of neon, helium and other gases.
Amplification, power - The ratio between the output signal variations and the corresponding input (control) power variation (for analog devices only).
Amplification, pressure - The ratio between outlet pressure and inlet (control) pressure.
Amplification - The ratio between the output signal variations and the control signal variations (for analog devices only)
Analog - Of or pertaining to the general class of fluidic devices or circuits whose output varies as a continuous function of its input.
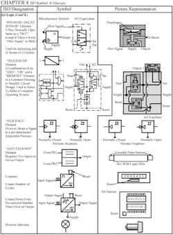
AND device - A control device that has its output in the logical 1 state if and only if all the control signals assume the logical 1 state.
Aniline point - The lowest temperature at which a liquid is completely miscible with an equal volume of freshly distilled aniline (ASTM Designation D611-64).
Anti-foam agent - One of two types of additives used to reduce foaming in petroleum products: silicone oil to break up large surface bubbles, and various kinds of polymers that decrease the number of small bubbles entrained in the oils.
Asperities - Microscopic projections on metal surfaces resulting from normal surface-finishing processes. Interference between opposing asperities in sliding or rolling applications is a source of friction, and can lead to metal welding and scoring. Ideally, the lubricating film between two moving surfaces should be thicker than the combined height of the opposing asperities.
Bactericide - An additive included in the formulations of water-mixed fluids to inhibit the growth of bacteria.
Bernoulli's Law - If no work is done on or by a flowing frictionless liquid, its energy due to pressure and velocity remains constant at all points along the streamline.
Beta Ratio - A rating applied to filters (it is also known as the "Filtration Ratio." It is a measure of the particle-capture efficiency of a filter element.
The ISO 4572 Multipass Test Procedure passes fluid through a test circuit to check for contaminant retention. A measured amount of contaminant is injected upstream of the filter and laser particle counters record particles in to particles out across the filter. When 100,000 particles are measured upstream of a 10( filter and 10,000 downstream it would have a Beta Ratio of 10. (B10(=100,000/10,000=10)
A Beta Ratio number is of no use alone but it is required to find the filter's efficiency rating. Efficiency of a filter element is what counts when comparing one filter to another. The higher the efficiency, the fewer contaminants get by. Efficiency coupled with the volume of contaminant retention can make a more expensive filter cost less due to its longer useful life.
- Efficiency is figured by the formula:
- Efficiency = (1 1/Beta ) 100
- Efficiency10 = (1 1/10) 100
Bleeding - Migration to the surface of plasticizers, waxes, or similar materials to form a film or beads.
Boundary lubrication - A form of lubrication between two rubbing surfaces without development of a full-fluid lubricating film. Boundary lubrication can be made more effective by including additives in the lubricating oil that provide a stronger oil film, thus preventing excessive friction and possible scoring. There are varying degrees of boundary lubrication, depending on the severity of service.
Boyle's Law - The absolute pressure of a fixed mass of gas varies inversely as the volume, provided the temperature remains constant.
Breakout - The force necessary to inaugurate sliding. Expressed in the same terms as friction. An excessive breakout value indicates the development of adhesion.
Breathing capacity - A measure of flow rate through an air breather.
Bulk modulus - The measure of a fluid's resistance to compressibility. It is the reciprocal of compressibility.
Cavitation - A localized gaseous condition within a liquid stream that occurs where the pressure is reduced to the liquid's vapor pressure, often as a result of a solid body, such as a propeller or piston, moving through the liquid. Also, the pitting or wearing away of a solid surface as a result of low fluid levels that draw air into the system.
Charles' Law - The volume of a fixed mass of gas varies directly with absolute temperature, provided the pressure remains constant.
Circuit, meter-in - A speed-control circuit in which the control is achieved by regulating the supply flow to the actuator.
Circuit, meter-out - A speed-control circuit in which the control is achieved by regulating the exhaust flow from the actuator.
Circuit, open - A circuit in which return fluid is directed to the reservoir before reciprocation.
Circuit, regenerative - A circuit in which pressurized fluid discharged from a component is returned to the system to reduce input power requirements.
Circuit, sequence - A circuit that establishes the order in which two or more phases of a circuit occur.
Circuit - An arrangement of interconnected components and parts.
Cold flexibility - Flexibility following exposure to a predetermined time.
Cold flow - Continued deformation under stress.
Compatibility, seal - Ability of an elastomer to resist the action of a fluid on its dimensional and mechanical properties.
Compressibility - The change in volume of a unit volume of a fluid when subjected to a unit change in pressure.
Compression efficiency - The ratio of the theoretical work required (in a given process) to the actual work required to be done to compress and de-liver the air. Expressed as a percentage. Compression efficiency accounts for fluid-friction losses, leakage, and thermodynamic variations from the theoretical process.
Compression modulus - The ratio of the compressive stress to the resulting compressive strain (the latter expressed as a fraction of the original height or thickness in the direction of the force). Compression modulus may be either static or dynamic.
Compression ratio - The ratio of the absolute discharge pressure to the absolute intake pressure.
Compression set - The amount by which a rubber specimen fails to return to original shape after release of the compressive load.
Compressor - A device that converts mechanical force and motion into pneumatic fluid power.
Condensation - The process of changing a vapor into a liquid condensate by the extraction of heat.
Conditioner, air - An assembly comprising a filter, a pressure-reducing valve with gauge, and a lubricator, intended to deliver compressed air in suitable condition for its application.
Conductor - A component whose primary function is to contain and direct fluid.
Contaminant - Any material or substance that is unwanted or adversely affects the fluid power system or components, or both.
Control - A device used to regulate the function of a component or system.
Controller - A device that senses a change of fluid state and automatically makes adjustments to maintain the state of the fluid between predetermined limits, e.g., pressures, temperatures, etc.
Copolymer - A polymer consisting of two different monomers that are chemically combined.
Corrosion inhibitor - An additive that protects wetted metal surfaces from chemical attack by water or other contaminants. Polar compounds wet the metal surface preferentially, protecting it with a film of oil. Other compounds may absorb water by incorporating it in a water-in-oil emulsion so that only the oil touches the metal surface. Another type of corrosion inhibitor combines chemically with the metal to present a non-reactive surface.
Creep - The progressive relaxation of a given rubber material while it is under stress. This relaxation eventually results in permanent deformation or "set."
Cushion - A device that provides controlled resistance to motion.
Cylinder - A device that converts fluid power into linear mechanical force and motion. It usually consists of a movable element such as a piston and piston rod, plunger or ram, operating within a cylindrical bore.
Cylinder, adjustable stroke - A cylinder equipped with adjustable stops at one or both ends to limit piston travel.
Cylinder, area, piston, effective - The area upon which fluid pressure acts to provide a mechanical force.
Cylinder, area, piston rod - The cross-sectional area of the piston rod.
Cylinder, bore - The internal diameter of the cylinder body.
Cylinder cap - An end closure for a cylinder that completely covers the bore area.
Cylinder capacity - The volume of a theoretically incompressible fluid that would be displaced by the piston during a complete stroke. (For double-acting cylinders it must be given for both directions of stroke.)
Cylinder capacity, extending - The volume required for one full extension of a cylinder.
Cylinder capacity, retracting - Volume (annular) absorbed by one full retraction of the cylinder oscillation of an output shaft.
Cylinder, cushioned - A cylinder with a piston-assembly deceleration device at one or both ends of the stroke.
Cylinder, differential - A double-acting cylinder in which the ratio of the area of the bore to the annular area between the bore and the piston rod is significant in circuit function.
Cylinder, double-acting - A cylinder in which fluid force can be applied to the moveable element (piston) in either direction.
Cylinder, double rod - A cylinder with a single piston and a piston rod extending from each end.
Cylinder, dual stroke - A cylinder combination that provides two working strokes.
Cylinder, duplex - A unit comprised of two cylinders with independent control, mechanically connected on a common axis to provide three or four positions depending on the method of application.
Cylinder force, theoretical - The pressure multiplied by the effective piston area (ignoring friction). For double-acting cylinders, the value must be given for both directions of stroke.
Cylinder, piston-type - A cylinder in which the piston has a greater cross-sectional area than the piston rod.
Cylinder, plunger (ram) - A cylinder in which the piston has the same cross-sectional area as the piston rod.
Cylinder, rotating - A cylinder in which the piston and piston rod, plunger or ram, is permitted to rotate with reference to the cylinder housing.
Cylinder, single-acting - A cylinder in which the fluid force can be applied to the movable element in only one direction.
Cylinder, tandem - An arrangement of at least two pistons on the same rod moving in separate chambers on the same cylinder body allowing the compounding of force on the piston rod.
Cylinder, telescoping - A cylinder with two or more stages or extensions, achieved by hollow piston rods sliding one within the other (may be single- or double-acting).
Cylinder, tie rod - A cylinder with head and cap end closures that are secured by tie rods.
Cylinder, rotary actuator - A cylinder that translates piston reciprocation into oscillation of an output shaft.
Darcy's Formula - A formula used to determine the pressure drop due to flow friction through a conduit.
Deliquescent -A special hygroscopic compound with absorptive properties that can separate moisture.
Demulsibility - The ability of an oil to separate from water.
Density - The weight of a given volume of air, usually expressed in lb/ft3 at standard temperature and pressure.
Desiccant - A material that tends to remove moisture from compressed air.
Dew point - The temperature at which vapors in a gas condense. For practical purposes, it must be referred to a stated pressure.
Dewaxing - Removal of paraffin wax from lubricating oils to improve low-temperature properties, especially to lower the cloud point and pour point.
Digital - Of or pertaining to the general class of fluidic devices or circuits whose output varies in discrete steps (i.e., pulses or "on-off" characteristics).
Displacement - The net volume swept by the moving parts of a compressor per unit of time. This term applies only to positive-displacement compressors.
Displacement, volumetric - The volume absorbed or displaced per stroke of a cylinder or per cycle of a pump or motor.
Dissolved air - Air that is dispersed at a molecular level in hydraulic fluid to form a single phase.
Dissolved water - Water that is dispersed at a molecular level in hydraulic fluid to form a single phase.
Dither - A low-amplitude, relatively high-frequency periodic electrical signal, some-times superimposed on a servovalve input to improve system resolution. Dither is expressed by the dither frequency (Hz) and the peak-to-peak dither current amplitude.
Droop - The deviation between no flow secondary pressure and secondary pressure at a given flow.
Dryer, compressed air - A device for reducing the moisture content of the working compressed air.
Durometer - 1. An instrument for measuring the hardness of rubber. It measures the resistance to the penetration of an indenter point into the surface of rubber. 2. Numerical scale of rubber hardness.
EP additive - A lubricant additive that prevents sliding metal surfaces from seizing under conditions of extreme pressure (EP). At the high local temperatures associated with metal-to-metal contact, an EP additive com-bines chemically with the metal to form a surface film that prevents the welding of opposing asperities, and the consequent scoring that is destructive to sliding surfaces under high loads. Reactive compounds of sulfur, chlorine, or phosphorus are used to form these inorganic films.
Efficiency - The ratio of output to the corresponding input.
Elasticity - The property of a material that tends to return to its original shape after deformation.
Elastomer - Any synthetic or natural material with resilience or memory sufficient to return to its original shape after distortion.
Elongation - Generally means "ultimate elongation" or percent increase in original length of a specimen when it breaks.
Emulsion, oil-in-water - A dispersion of oil in a continuous phase of water.
Emulsion, water-in-oil - A dispersion of water in a continuous phase of oil.
Emulsifier - An additive that promotes formation of a stable mixture . . . or emulsion . . . of oil and water.
Emulsion - A homogeneous dispersion of two immiscible liquids, generally of a milky or cloudy appearance.
Entrained air - A mechanical mixture of air bubbles having a tendency to separate from the liquid phase.
Expectancy, life - The predicted working period during which a component or system will maintain a specified level of performance under specified conditions. Sometimes expressed in statistical terms as a probability.
Filter - 1. A device whose primary function is the removal by porous media of insoluble contaminants from a liquid or a gas. 2. Chemically inert, finely divided material added to the elastomer to aid in processing and improve physical properties.
Filter, strainer - A coarse hydraulic filter, usually of woven wire construction. This may be in the form of a complete filter or just an element.
Filter, bypass (reserve) - A filter which provides an alternate unfiltered flow path around the filter element when a preset differential pressure is reached.
Filter, spin-on - A filter with spin-on element sealed in its own pressure housing for independent mounting to the filter.
Filtration ratio (bm) - The ratio of the number of particles greater than a given size (b) in the influent fluid to the number of particles greater than the same size (m) in the effluent fluid.
Filter, strainer - A coarse hydraulic filter usually of woven wire construction. This may be in the form of a complete filter or just an element.
Fire-resistant fluid - Hydraulic oil used especially in high-temperature or hazardous applications. Three common types of fire-resistant fluids are: (1) water-petroleum oil emulsions, in which the water prevents burning of the petroleum constituent; (2) water-glycol fluids; and (3) non-aqueous fluids of low volatility, such as phosphate esters, silicones, polyolesters, and halogenated hydrocarbon-type fluids.
Fitting - A connector or closure for fluid power lines and passages.
Fitting, compression - A fitting that seals and grips by manual adjustable deformation.
Fitting, flange - A fitting that utilizes a radially extending collar for sealing and connection.
Fitting, flared - A fitting that seals and grips by a pre-formed flare at the end of the tube.
Fitting, flareless - A fitting that seals and grips by means other than a flare.
Flash point - The temperature to which a liquid must be heated under specified conditions of the test method to give off sufficient vapor to form a mixture with air that can be ignited momentarily by a flame.
Flip flop - A digital component or circuit with two stable states and sufficient hysteresis so that it has "memory." Its state is changed with a control pulse; a continuous control signal is not necessary for it to remain in a given state.
Flow characteristic curve - The change in regulated (secondary) pressure occurring as a result of a change in the rate of air flow over the operating range of the regulator.
Flow rate - The volume, mass, or weight of a fluid passing through any conductor per unit of time.
Flow, laminar (streamline) - A flow situation in which fluid moves in parallel lamination or layers.
Flow, output - The flow rate discharged at the outlet port.
Flow, turbulent - A flow situation in which the fluid particles move in a random fluctuating manner.
Flow - Movement of fluid generated by pressure differences.
Fluid capacity - The liquid volume coincident with the "high" mark of the level indicator.
Fluid friction - Friction due to the viscosity of fluids.
Fluid logic - A branch of fluid power associated with digital signal sensing and information processing, using components with or without moving parts.
Fluid miscibility - Capacity of fluids to be mixed in any ratio without separation into phases.
Fluid power system - A system that transmits and controls power through use of a pressurized fluid within an enclosed circuit.
Fluid power - Energy transmitted and controlled through use of a pressurized fluid.
Fluid stability - The resistance of a fluid to permanent changes in properties.
Fluid stability, oxidation - The resistance of a fluid to permanent changes caused by chemical reaction with oxygen.
Fluid, anti-corrosive - A fluid containing metal corrosion inhibitors.
Fluid, aqueous - A fluid that contains water as a major constituent besides the organic material. The fire-resistance properties are derived from the water content.
Fluid, fire-resistant - A fluid that is difficult to ignite and shows little tendency to propagate flame.
Fluid, hydraulic - A fluid suitable for use in a hydraulic system.
Fluid, Newtonian - Fluid having a viscosity that is always independent of the rate of shear.
Fluid, pneumatic - A fluid suitable for use in pneumatic systems . . . usually air.
Fluid, rust protection - Capacity of a fluid to prevent the formation of rust under specified conditions.
Fluid - A liquid, gas, or combination thereof.
Force motor - A type of electromechanical transducer having linear motion used in the input stages of servovalves.
Free air - Any compressible gas, air, or vapor trapped within a hydraulic system that does not condense or dissolve to form a part of the system fluid.
Free water - Water droplets or globules in the system fluid that tend to accumulate at the bottom or top of the system fluid depending on the fluid's specific gravity.
Frequency response - The changes, under steady-state conditions, in the output variable that are caused by a sinusoidal input variable.
Full-fluid-film lubrication - The presence of a continuous lubricating film sufficient to completely separate two surfaces (as distinct from boundary-layer lubrication). Full-fluid-film lubrication is normally hydrodynamic lubrication, whereby the oil adheres to the moving part and is drawn into the area between the sliding surfaces, where it forms a pressure or hydrodynamic wedge.
Gauge damper (snubber) - A device employing a fixed or variable restrictor inserted in the pipeline leading to a pressure gauge. It prevents damage to the gauge mechanism caused by rapid fluctuations of fluid pressure.
Gauge protector - A device inserted in the pipeline to a pressure gauge and arranged to isolate the pressure gauge from the fluid pressure if this pressure exceeds a predetermined limit. The device can usually be adjusted to suit the range of the pressure gauge.
Gauge, bourdon tube - A pressure gauge in which the sensing element is a curved tube that tends to straighten out when subjected to internal fluid pressure.
Gauge, diaphragm - A gauge in which the sensing element is relatively thin and its inner portion is free to deflect with respect to its fixed periphery.
Gauge, instrument - An instrument or device for measuring, indicating, or comparing a physical characteristic.
Gauge, pressure - A gauge that indicates the pressure in the system to which it is connected.
Head - The height of a column or body of fluid above a given point expressed in linear units. Head is often used to indicate gauge pressure. Pressure is equal to the height times the density of the fluid.
Head, cylinder - The cylinder end closure that covers the differential area between the bore area and the piston rod area.
Head, friction - The pressure required to overcome the friction at the interior surface of a conductor and between fluid particles in motion. It varies with flow, size, type and condition of conductors and fittings, and the fluid characteristics.
Head, pressure - The pressure due to the height of a column or body of fluid.
Head, static - The height of a column or body of fluid above a given point.
Heat exchanger - A device that transfers heat through a conducting wall from one fluid to another. (Typically to cool a system.)
Heater - A device that transfers heat through a conducting wall from one fluid to another. (Typically to warm up a system.)
Hose, wire-braided - Hose consisting of a flexible material reinforced with woven wire braid.
Hose - A flexible line or conductor whose nominal size is its inside diameter.
Hydraulic amplifier - A fluid device that enables one or more inputs to control a source of fluid power and thus is capable of delivering at its output an enlarged reproduction of the essential characteristics of the input. Hydraulic amplifiers may utilize sliding spools, nozzle-flappers, jet pipes, etc.
Hydraulic fluid - The fluid that serves as the power transmission medium in a hydraulic system. The most commonly used fluids are petroleum and synthetic oils, oil-water emulsions, and water-glycol mixtures. The principal requirements of a premium hydraulic fluid are: proper viscosity, high viscosity index, anti-wear protection (if needed), good oxidation stability, adequate pour point, good demulsibility, rust inhibition, resistance to foaming, and compatibility with seal materials. Anti-wear oils are frequently used in compact, high-pressure, and high-capacity pumps that require extra lubrication protection.
Hydraulic motor - A device that converts hydraulic fluid power into mechanical force and motion. It usually provides rotary mechanical motion.
Hydraulic motor efficiency, hydro-mechanical - The ratio of the effective torque to the derived torque.
Hydraulic motor efficiency, overall - The ratio of the output power to the effective power.
Hydraulic motor efficiency, volumetric - The ratio of the derived output flow to the effective input flow.
Hydraulic motor, fixed displacement - A hydraulic motor in which the displacement per unit of output motion cannot be varied.
Hydraulic motor, flow, input - The flow rate crossing the transverse plane of the inlet port.
Hydraulic motor, gear, external - A motor having two or more external gears.
Hydraulic motor, gear, internal - A motor with an internal gear in engagement with one or more external gears.
Hydraulic motor, gear - A motor in which two or more gears act in arrangement as working members.
Hydraulic motor, vane - A motor in which the fluid under pressure acting on a set of radial vanes causes rotation of an internal member.
Hydraulic stepping motor - A hydraulic motor that follows the commands of a stepped input signal to achieve positional accuracy.
Hydraulics - The engineering science that pertains to liquid pressure and flow.
Hydrodynamics - The engineering science that governs the movement of liquids and the forces opposing that movement.
Hydrokinetics - The engineering science that pertains to the energy of liquid flow and pressure.
Hydro-pneumatics - The combination of hydraulic and pneumatic fluid power.
Hydrostatic transmission - The combination of one or more hydraulic pumps and motors to form a unit.
Hydrostatics - The engineering science that pertains to the energy of liquids at rest.
Ideal gases - Gasses that follow the perfect gas laws without deviation. There are no real ideal gases, but they provide a common starting point for calculations and corrections.
Immiscible - Incapable of being mixed without separation of phases. Water and petroleum oil are immiscible under most conditions, although they can be made miscible with the addition of a proper emulsifier.
Indicator, differential pressure - An indicator that signals a difference in pressure between two points in a fluid power system.
Inhibitor - Any substance that, when present in very small proportions, slows, prevents or modifies chemical reactions such as corrosion or oxidation.
Intensification, ratio of - The ratio of the secondary pressure to the primary pressure or of the primary flow rate to the secondary flow rate.
Intensifier, double-acting - A unit that magnifies the secondary fluid pressure regardless of the direction of flow of the primary fluid.
Intensifier, single-acting - A unit that only magnifies the fluid pressure in one direction of flow of the primary fluid.
Intensifier, single shot - An intensifier in which the continuous application of primary fluid at the inlet port can only give a limited volume of secondary fluid.
Intensifier - A device that converts low-pressure fluid power into higher-pressure fluid power.
Inter-cooling - The process of cooling air between stages of compression to liquefy condensed vapors and save power by reducing the temperature of air entering the next stage.
Isothermal compression - A compression arrangement in which the temperature of the air remains constant during compression.
Joint - A line-positioning connector.
Joint, rotary - A joint connecting lines that have relative operational rotation.
Kinematic viscosity - The absolute viscosity of a fluid divided by its density at the same temperature of measurement. It is the measure of a fluid's resistance to flow under gravity.
Leakage rate - The rate at which a gas or liquid passes through a barrier. Total leakage rate includes the amounts that diffuse or permeate through the material of the barrier as well as the amount that escapes around it.
Line, return - A conductor (pipe) to return the working fluid to the reservoir.
Line, working - A line that conducts fluid power.
Line - A tube, pipe, or hose for conducting fluid.
Lubricator - A device that adds controlled or metered amounts of lubricants into a pneumatic system.
Lubricity - The ability of an oil or grease to lubricate (also called film strength).
Magnetic plug - A plug that attracts and holds ferromagnetic particles.
Manifold - A conductor that provides multiple connection ports.
Maximum inlet pressure - The maximum rated gauge pressure applied to the inlet port of the regulator.
Mechanical efficiency - The ratio of the indicated horsepower to the actual shaft horsepower.
Memory - The tendency of a material to return to its original shape after deformation.
Miscible - Capable of being mixed in any concentration without separation of phases; e.g., water and ethyl alcohol are miscible.
Modulus of elasticity - One of the several measurements of stiffness or resistance to deformation. Often incorrectly used to indicate specifically static tension modulus.
Modulus - Tensile stress at a specified elongation. (Usually 100% elongation for elastomers.)
Moving parts logic - The technology of achieving logic control by means of fluid devices having moving parts.
Muffler - A device for reducing gas flow noise. Noise is decreased by backpressure control of gas expansion.
Newt - A unit of kinematic viscosity in the English system. It is expressed in square inches per second (see Stokes).
Newtonian fluid - A fluid, such as a straight mineral oil, whose viscosity does not change with rate of flow.
Non-Newtonian fluid - A fluid, such as a grease or a polymer containing oil (e.g. multi-grade oil), in which shear stress is not proportional to shear rate.
NOR device - A control device that has its output in the logical 1 state if and only if all the control signals assume the logical 0 state.
NOT device - A control device that has its output in the logical 1 state if and only if the control signal assumes the logical 0 state. (The NOT device is a single-input NOR device.)
Oil swell - The change in volume of a rubber article due to absorption of oil or other fluid.
OR device - A control device that has its output in the logical 0 state if and only if all the control signals assume the logical 0 state.
Out-gassing - A vacuum phenomenon wherein a substance spontaneously releases volatile constituents in the form of vapors or gases. In rubber compounds, these constituents may include water vapor, plasticizers, air, inhibitors, etc.
Output stage - The final stage of hydraulic amplifications used in a servovalve.
Oxidation inhibitor - A substance added in small quantities to a petroleum product to increase its oxidation resistance, thereby lengthening its service or storage life. Also called an anti-oxidant.
Ozone resistance - A material's ability to withstand the deteriorating effect of ozone (which generally causes cracking).
Packing - A sealing device consisting of bulk deformable material of one or more mating deformable elements, reshaped by manually adjustable compression to obtain and maintain effectiveness. Packing usually uses axial compression to obtain radial sealing.
Pascal's Law - A pressure applied to a confined fluid at rest is transmitted with equal intensity throughout the fluid.
Permanent set - The deformation remaining after a specimen has been stressed in tension for a definite period and released for a definite period.
Permeability - The rate at which a liquid or gas under pressure passes through a solid material by diffusion and solution. In rubber terminology, it is the rate of gas flow expressed in atmospheric cubic centimeters per second through an elastomeric material one centimeter square and one centimeter thick (atm cm3/cm2 ∞cm∞sec)
Petroleum fluid - A fluid composed of petroleum oil that may contain additives and/or inhibitors.
Pipe - A conductor whose outside diameter is standardized for threading. Pipe is available in standard, extra-strong, or double extra-strong wall thickness.
Piston rod - The element that transmits mechanical force and motion from the piston.
Plasticizer - A substance -- usually a heavy liquid -- added to an elastomer to decrease stiffness, improve low-temperature properties, and improve processing.
Pneumatics - The engineering science pertaining to gaseous pressure and flow.
Poise - The standard unit of dynamic viscosity in the centimeter-gram-second (CGS) system. It is the ratio of the shearing stress to the shear rate of fluid and is expressed in millipascal sec. (equals 1 centipoise).
Polar compound - A chemical compound whose molecules exhibit electrically positive characteristics at one extremity and negative characteristics at the other. Polar compounds are used as additives in many petroleum products.
Polymer - A material formed by the joining together of many (poly) individual units (mer) of one or more monomers. Synonymous with elastomers.
Polytropic compression - A process that occurs when heat is transferred to or from air at a precise rate during compression so that PVn is constant.
Port - A terminus of a passage in a component to which conductors can be connected.
Port, differential pressure - A port that provides a passage to the upstream and downstream sides of a component.
Post cure - The second step in the vulcanization process for the more exotic elastomers. It provides stabilization of parts and drives off decomposition products resulting from the vulcanization process.
Pour point - The lowest temperature at which an oil or distillate fuel is observed to flow when cooled under conditions prescribed by test method ATM D 97. The pour point is 3°C (5°F) above the temperature at which the oil in a test vessel shows no movement.
Power unit - A combination of pump, pump drive, reservoir, controls and conditioning components to supply hydraulic power to a system.
Pressure, absolute - The pressure above zero absolute, i.e., the sum of atmospheric and gauge pressure. In vacuum related work it is usually expressed in millimeters of mercury (mm-Hg).
Pressure, atmospheric - Pressure exerted by the atmosphere at any specific location. (Sea level pressure is approximately 14.7 pounds per square inch absolute. 1 bar = 14.5 PSI).
Pressure, back - The pressure encountered on the return side of a system.
Pressure, break loose (breakout) - The minimum pressure that initiates movement.
Pressure, burst - The pressure that causes failure of and consequential loss of fluid through the product envelope.
Pressure, charge - The pressure at which replenishing fluid is formed into a fluid power system.
Pressure, control range - The permissible limits between which system pressure may be set.
Pressure, cracking - The pressure at which a pressure-operated valve begins to pass fluid.
Pressure, differential (pressure drop) - The difference in pressure between any two points of a system or a component.
Pressure, gauge - The pressure differential above or below ambient atmospheric pressure.
Pressure, induced - The pressure generated by an externally applied force.
Pressure, inlet - The pressure at the apparatus inlet port.
Pressure, intensified - The outlet pressure in a fluid power cylinder required to slow the piston rod extending under regulated pressure introduced at the cap end.
Pressure, maximum inlet - The maximum rated gauge pressure applied to the inlet.
Pressure, nominal - A pressure value assigned to a component or system for the purpose of convenient designation.
Pressure, outlet - Pressure at the apparatus outlet port.
Pressure, override - The difference between the cracking pressure of a valve and the pressure reached when the valve is passing its rated flow.
Pressure, peak - The maximum pressure encountered in the operation of a component.
Pressure, pilot - The pressure in the pilot circuit.
Pressure, precharge - The pressure of compressed gas in an accumulator prior to the admission of a liquid.
Pressure, proof - The non-destructive test pressure -- in excess of the maximum rated operating pressure -- that causes no permanent deformation, excessive external leakage, or other resulting malfunction.
Pressure, rated - The qualified operating pressure that is recommended for a component or system by the manufacturer.
Pressure, shock - The pressure existing in a wave moving at sonic velocity.
Pressure, static - The pressure in a fluid at rest.
Pressure, surge - The pressure resulting from surge conditions.
Pressure, system - The pressure that overcomes the total resistance in a system. It includes all losses as well as useful work.
Pressure - Force per unit area, usually expressed in pounds per square inch or bar.
Pump, fixed-displacement - A hydraulic pump in which the volume displaced per cycle cannot be varied.
Pump, gear, external - A pump with two or more external gears.
Pump, gear, internal - A pump with an internal gear in engagement with one or more external gears.
Pump, gear - A pump in which two or more gears act in engagement as pumping members.
Pump, hydraulic - A device that converts mechanical force and motion into hydraulic fluid power.
Pump, multiple-stage - Two or more hydraulic pumps connected in series.
Pump, piston, axial - A pump having several pistons with mutually parallel axes that are arranged around and parallel to a common axis.
Pump, piston, inline - A pump having several pistons with mutually parallel axes arranged on a common plane.
Pump, piston, radial - A pump having several pistons arranged to operate radially.
Pump, piston - A pump in which the fluid volume is displaced by one or more reciprocating pistons.
Pump, screw - A hydraulic pump having one or more screws rotating in a housing.
Pump, vane, balanced - A pump in which the transverse forces on the rotor are balanced.
Pump, vane, unbalanced - A pump in which the transverse forces on the rotor are not balanced.
Pump, vane - A hydraulic pump having multiple radial vanes within a supporting rotor.
Pump, variable-displacement - A hydraulic pump in which the volume displaced per cycle can be varied.
Pump-motor - A unit that functions either as a pump or as a rotary motor.
Pump - A device that converts mechanical torque and motion into hydraulic fluid power.
Pumping or surge - The reversal of flow within a dynamic compressor. It takes place when insufficient pressure is generated to maintain flow.
Quick-disconnect coupling - A component that can quickly join or separate a fluid line without the use of tools or special devices.
Refrigerated dryer - A device that separates moisture by lowering the air temperature by means of refrigeration compressor and heat exchanger.
Regenerative dryer - A dryer that restores its own capacity to separate moisture -- without replacing the drying compound.
Regenerative circuit - see Circuit, regenerative.
Regulator, air line pressure - A regulator that transforms a fluctuating air pressure supply to provide a constant lower pressure output.
Reinforcing agent - A material dispersed in an elastomer to improve compression, shear, or other stress properties.
Reservoir (tank) - A container for storage of liquid in a fluid power system.
Reservoir, hydraulic - A reservoir for storing and conditioning a liquid in a hydraulic system.
Reservoir, pressure-sealed - A sealed reservoir for storage of fluids under pressure.
Resilient - Capable of returning to original size and shape after deformation.
Reyn - The standard unit of absolute viscosity in the English system. It is expressed in pound-seconds per square inch.
Reynolds Number - A numerical ratio of the dynamic forces of mass flow to the shear stress due to viscosity. Flow usually changes from laminar to turbulent between Reynolds Numbers 2000 and 4000.
Ring, O- - A ring that has a round cross-section.
Ring, piston - A piston sealing ring. It is usually one of a series and often is split to facilitate expansion or contraction.
Ring, scraper - A ring that removes material by a scraping action.
Rotation - The direction of rotation is always quoted as viewed looking at the shaft end. In dubious cases, provide a sketch.
Seal, cup - A sealing device with a radial base integral with an axial cylindrical projection at its outer diameter.
Seal, dynamic - A sealing device used between parts that have relative motion.
Seal, elastomer - A material having rubber-like properties; i.e., having the capacity for large deformation, with rapid and substantially complete recovery on release from the deforming force.
Seal, rod (shaft) - A sealing device that seals the periphery of a piston rod.
Seal, static (gasket) - A sealing device used between parts that have no relative motion.
Sensor - A device that detects and transmits changes in external conditions.
Separator - A device whose primary function is to isolate contaminants by physical properties other than size. (Separators remove gas from liquid media or remove liquid from gaseous media).
Servovalve - A valve that modulates output as a function of an input command.
Servovalve, electrohydraulic - A servo-valve that is capable of continuously controlling hydraulic output as a function of an electrical input.
Servovalve, electrohydraulic, flow-control - An electrohydraulic servovalve whose primary function is control of output flow.
Servovalve hysteresis - The difference in the servovalve input currents required to produce the same output during a single cycle of valve input current when cycled at a rate below that at which dynamic effects are important.
Servovalve null leakage - The total internal leakage from the valve in the null position.
Servovalve, pressure-control - A hydraulic servo valve whose primary function is the control of output pressure.
Shear rate - The rate at which adjacent layers of fluid move with respect to each other, usually expressed as reciprocal seconds.
Shear stress - The frictional force overcome in sliding one layer of fluid along another, as in any fluid flow. The shear stress of petroleum oil -- or other Newtonian fluid -- at a given temperature varies directly with shear rate (velocity). The ratio between shear stress and shear rate is constant; this ratio is termed viscosity.
Shrinkage - The decreased volume of a seal, usually caused by extraction of soluble constituents from fluids, followed by air drying.
Silencer - A device for reducing gas flow noise. Noise is decreased by tuned resonant control of gas expansion.
Snubber - See gauge damper.
Solenoid, digital - An electrically energized device that generates on-off signals.
Solenoid, proportional - An electrical device that reacts proportionally to the strength of electrical signals.
Sorption - The term used to denote the combination of absorption and adsorption processes in the same substance.
Specific gravity, liquid - The ratio of the weight of a given volume of liquid to the weight of an equal volume of water.
Squeeze - The cross-sectional diametrical compression of an O-ring between the surface of the groove bottom and the surface of the other mating metal part in the gland assembly.
Stage - A hydraulic amplifier used in a servovalve. Servovalves may be single-stage, two-stage, three-stage, etc.
Standard - A document, or an object for physical comparison, for defining product characteristics, products, or processes; prepared by the consensus of a properly constituted group of those substantially affected and having the qualifications to prepare the standard for voluntary use.
Stokes - The standard unit of kinematic viscosity in the CGS system. It is expressed in square centimeters per second; 1 centistokes equals 0.01 stokes.
Strainer - See filter, strainer.
Surface tension - The surface force of a liquid in contact with a fluid by which it tends to assume a spherical form and to present the least possible surface. It is expressed in pounds per foot or dynes per centimeter.
Surfactant - A surface-active agent that reduces interfacial tension of a liquid. A surfactant used in petroleum oil may increase the oil's affinity for metals and other material.
Surge - A transient rise of pressure or flow.
Swell - The increased volume of specimen caused by immersion in a fluid (usually a liquid).
Switch, float - An electric switch that is responsive to liquid level.
Switch, flow - An electric switch operated by fluid flow.
Switch, pressure-differential - An electric switch operated by a difference in pressure.
Switch, pressure - An electric switch operated by fluid pressure.
Standard pressure and temperature - Generally defined as 68° F and 14.70 psia with a relative humidity of 36%.
Synthetic fluid, silicate ester - A fluid compound of organic silicates. It may contain additives.
Synthetic fluid - Fluid other than mineral that has been artificially compounded for use in a fluid power system.
Temperature, ambient - The temperature of the environment in which an apparatus is working.
Tensile strength - The force in pounds per square inch required to cause the rupture of a specimen of a rubber material.
Terpolymer - A polymer consisting of three different monomers chemically combined.
Tie rod - An axial external element that traverses the length of the cylinder. It is pre-stressed at assembly to hold the ends of the cylinder against the tubing. (Tie rod extensions can serve as mounting devices.)
Torque motor - A type of electro-mechanical transducer having rotary motion used in the input stages of servovalves.
Torque - Rotary force transmitted by the driving shaft of a motor or pump.
Torr - A unit of pressure equal to 1/760 of an atmosphere.
Torricelli's Theorem - The liquid velocity at an outlet discharging into the free atmosphere is proportional to the square root of the head.
Transducer, flow - A device that converts fluid flow to an electrical signal.
Transducer, pressure - A device that converts fluid pressure to an electrical signal.
Trunnion - A cylinder-mounting device consisting of a pair of opposite projecting cylindrical pivots. The cylindrical pivot pins are at right angle or normal to the piston rod centerline to permit the cylinder to swing in a plane.
Tube - A conductor whose size is its outside diameter. Tube is available in varied wall thickness and material.
Vacuum - Pressure less than ambient atmospheric pressure.
Vacuum pump - A device that uses mechanical force and motion to evacuate gas from a connected chamber to create sub-atmospheric pressure.
Valve - A device that controls fluid flow direction, pressure, or flow rate.
Valve actuator - The valve part(s) through which force is applied to move or position flow-directing elements.
Valve, air - A valve for controlling air flow direction, pressure, or flow rate.
Valve, cartridge - A valve with working parts contained in a cylindrical body. The cylindrical body must be inserted into a housing for use. Ports through the body cooperate with ports in the containing housing.
Valve, directional-control - A valve whose primary function is to direct or prevent flow through selected passages.
Valve, directional-control, 3-way - A directional control valve whose primary function is to pressurize and exhaust a port.
Valve, directional-control, 4-way - A directional control valve whose primary function is to pressurize and exhaust two ports.
Valve, directional-control, check - A directional control valve that permits flow of fluid in only one direction.
Valve, directly operated - A valve in which the controlling forces acting on the element directly influence the movement of the control elements.
Valve, electrohydraulic, proportional - A valve that responds proportionally to input signals.
Valve, flow-control (flow-metering) - A valve whose primary function is to control flow rate.
Valve, flow-control, bypass - A pressure-compensated flow-control valve that regulates the working flow, diverting surplus fluid to the reservoir or to a second service.
Valve, flow-control, deceleration - A flow control valve that gradually reduces flow rate to provide deceleration.
Valve, flow-control, pressure-compensated - A flow control valve that controls the rate of flow independent of pressure fluctuations.
Valve, flow-dividing, pressure-compensated - A flow-dividing valve that divides flow at a constant ratio regardless of difference in resistance of the branches.
Valve, flow-dividing - A valve that divides the flow from a single source into two or more branches.
Valve, hydraulic - A valve for controlling liquid flow direction, pressure, or flow rate.
Valve, needle - A flow-control valve in which the adjustable control element is a tapered needle. Its usual purpose is to accurately control the rate of flow.
Valve, pilot-operated (indirect) - A valve in which a relatively small flow through an integral vent line relief (pilot) controls the movement of the main element.
Valve, pilot - A valve applied to operate another valve or control.
Vapor pressure - The pressure of a confined vapor in equilibrium with its liquid at a specified temperature; thus, a measure of a liquid's volatility.
Viscosity - The measurement of a fluid's resistance to flow. The common metric unit of absolute viscosity is the poise, which is defined as the force in dynes required to move a surface one square centimeter in area past a parallel surface at a speed of one centimeter per second, with the surfaces separated by a fluid film one centimeter thick. In addition to kinematic viscosity, there are other methods for determining viscosity, including, Saybolt Universal viscosity, Saybolt Furol viscosity, Engier viscosity, and Redwood viscosity. Because viscosity varies inversely with temperature, its value is meaningless until the temperature at which it is determined is reported.
Viscosity index (V.I.) - An empirical, unit-less number indicating the effect of temperature changes on the kinematic viscosity of an oil. Liquids change viscosity with temperature, becoming less viscous when heated. The higher the V.I. of an oil, the lower its tendency to change viscosity with temperature.
Volume change - A change in the volume of a seal as a result of immersion in a fluid -- expressed as a percentage of the original volume.
Volumetric efficiency - The ratio of the actual volume of air admitted (at a specified temperature and pressure), to the full piston-displacement volume- obviously for reciprocating compressors only. Volume (annular) absorbed by one full retraction of the cylinder.
Vulcanization - A thermo-setting reaction involving the use of heat and pressure, resulting in greatly increased strength and elasticity of rubber-like materials.
"Fluid Power Glossary" reprinted, with permission, from the Fluid Power Handbook & Directory, 2000/2001 edition. Copyright Penton Media, Inc."











